首頁 >> 資訊平臺 >> 劉寶平工作室__Mr. Liu Stu >> 聊職院 >> 課題丨論文丨專利丨專著 >> 專利
劉寶平工作室_Mr.Liu Stu
.
本發明公開了一種旅行社專用旅游信息展示裝置,具體涉及信息展示裝置領域,包括展示板、防護罩和腳架,所述防護罩和腳架均與展示板固定連接。本發明通過拓展展示件與指向件的配合使用,通過轉動連接桿的角度,隨后撥動指示標,使該連接桿角度下的指示標的指向保持水平,由指示標指向宣傳海報上文字部分的待展開介紹的地點名稱位置,連同連接桿形成一個指示引線的效果,旅游者在觀看張貼的宣傳海報時,拉動對應位置處的手持桿,經主體桿與收聚盒的轉動帶動拓展卷的全面展開,需要信息拓展的旅游者僅需根據拓展卷上內容即可對旅游地點進行詳盡了解可以,保證展示信息的簡潔有效性又可保證部分旅游者對詳盡信息的需求。
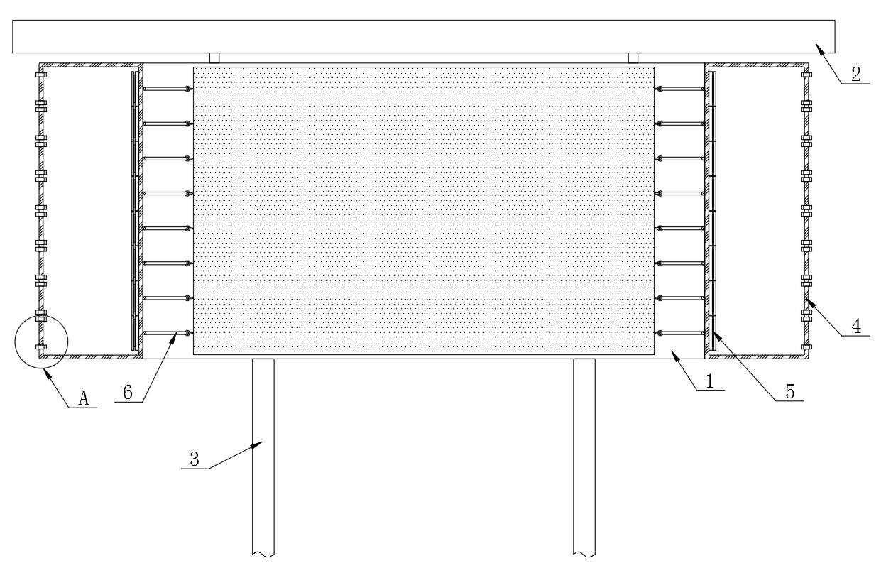
1、一種旅行社專用旅游信息展示裝置,包括展示板(1)、防護罩(2)和腳架(3),所述防護罩(2)和腳架(3)均與展示板(1)固定連接,其特征在于:所述展示板(1)兩側均固定設有連接架(4),所述連接架(4)靠近展示板(1)一側均勻可拆卸活動設有多個拓展展示件(5),所述展示板(1)兩側均勻設有多個指向件(6),所述指向件(6)的數量與拓展展示件(5)的數量相等且一一對應;
所述展示板(1)包括主體板(11),所述主體板(11)中部開設有安裝槽(12),所述安裝槽(12)內部固定設有透光板(13);
所述連接架(4)包括主框架(41),所述主框架(41)與主體板(11)固定連接,所述主框架(41)遠離主體板(11)一端均勻固定設有多個定位架(42),所述定位架(42)中部開設有掛放槽(43);
所述拓展展示件(5)包括收聚盒(51),所述收聚盒(51)內部設有主體桿(52),所述主體桿(52)兩端均與收聚盒(51)內壁之間轉動連接,所述主體桿(52)兩端與收聚盒(51)內壁之間設有轉向扭簧(53),所述轉向扭簧(53)兩端分別主體桿(52)和收聚盒(51)內壁固定連接,所述主體桿(52)一側設有手持桿(54),所述手持桿(54)與主體桿(52)之間設有拓展卷(55),所述拓展卷(55)兩端分別與手持桿(54)和主體桿(52)固定連接;
所述指向件(6)包括連接桿(61),所述連接桿(61)一端設有定位柱(62),所述連接桿(61)另一端設有固定吸盤(63),所述固定吸盤(63)與連接桿(61)之間設有指示標(64),所述定位柱(62)中部開設有轉向槽(65),所述連接桿(61)與定位柱(62)連接處設有第一通孔(66),所述連接桿(61)另一端固定設有固定柱(67),所述固定柱(67)遠離連接桿(61)一端與固定吸盤(63)固定連接,所述指示標(64)與固定柱(67)連接處開設有第二通孔(68)。
2、根據權利要求1所述的一種旅行社專用旅游信息展示裝置,其特征在于:所述安裝槽(12)縱向貫穿主體板(11),所述安裝槽(12)長寬均與透光板(13)相等,且透光板(13)厚度小于安裝槽(12)深度,所述透光板(13)由鋼化玻璃/透明亞克力板材料制成。
3、根據權利要求1所述的一種旅行社專用旅游信息展示裝置,其特征在于:相連兩個所述定位架(42)設置為一組,定位架(42)組數與拓展展示件(5)數量相等且一一對應,所述掛放槽(43)寬度大于手持桿(54)外徑。
4、根據權利要求3所述的一種旅行社專用旅游信息展示裝置,其特征在于:所述手持桿(54)長度大于收聚盒(51)高度,且手持桿(54)長度大于每組定位架(42)的間距。
5、根據權利要求1所述的一種旅行社專用旅游信息展示裝置,其特征在于:所述定位柱(62)一端與主體板(11)固定連接,所述第一通孔(66)內徑大于轉向槽(65)外徑且小于定位柱(62)外徑,所述連接桿(61)通過第一通孔(66)與定位柱(62)轉動連接。
6、根據權利要求1所述的一種旅行社專用旅游信息展示裝置,其特征在于:所述固定吸盤(63)由橡膠材料制成,所述固定柱(67)兩端分別與固定吸盤(63)和連接桿(61)固定連接。
7、根據權利要求1所述的一種旅行社專用旅游信息展示裝置,其特征在于:所述指示標(64)設置為箭頭狀,所述第二通孔(68)內徑與固定柱(67)外徑相等,所述指示標(64)通過第二通孔(68)與固定柱(67)轉動連接。
8、根據權利要求1所述的一種旅行社專用旅游信息展示裝置,其特征在于:所述拓展卷(55)上復印有旅游點詳情及該地的風土人情的詳盡介紹信息。
一種旅行社專用旅游信息展示裝置
技術領域
本發明涉及信息展示裝置技術領域,更具體地說,本發明涉及一種旅行社專用旅游信息展示裝置。
背景技術
隨著國民經濟實力的不斷發展,人們在解決溫飽問題后,逐漸對精神世界的豐富需求度在不斷提高,在業余時間外出旅行是豐富見識的一個有效的路徑,特別是我國中老年人在旅游業中的占比在逐漸提升,在旅游過程中不僅僅是觀看美景,也需要人員的配同,以更快的適應旅游地的風俗情況及注意信息;通過旅行社報名,組團進行旅游是一個良好的解決方案。
旅行社世界旅游組織給出的定義為"零售代理機構向公眾提供關于可能的旅行、居住和相關服務,包括服務酬金和條件的信息。旅行組織者或制作批發商或批發商在旅游需求提出前,以組織交通運輸,預訂不同的住宿和提出所有其他服務為旅行和旅居做準備"的行業機構。中旅游業務是指為旅游者代辦出境、入境和簽證手續,招徠、接待旅游者,為旅游者安排食宿等有償服務的經營活動。旅行社的營運項目通常包括了各種交通運輸票券(例如機票、巴士票與船票),套裝行程,旅行保險,旅行書籍等的銷售,與國際旅行所需的證照(例如護照、簽證)的咨詢代辦。最小的旅行社可能只有一人,最大的旅行社則全球都有分店。從旅行社衍生的職業有:領隊、導游、票務員、簽證專員、計調員(旅游操作)等。經營旅行社是必須要持有當局發出的有效牌照,并且必須是某指定旅行社商會的會員才能經營旅行團,進行帶團旅行。
旅行社在進行旅游信息宣傳時,往往需要張貼該月或近期的旅游線路,從而供旅游者進行參考判定,但現有的展示架因展區有限,無法詳盡的敘述旅游線路的優點,而若大篇幅的介紹旅游線路的優點時,則旅游者無法快速定位旅游線路簡介,從而給不同需求的旅游者造成不同困惑。
發明內容
為了克服現有技術的上述缺陷,本發明的實施例提供一種旅行社專用旅游信息展示裝置,本發明所要解決的技術問題是:如何保證展示信息的簡潔有效性又保證部分旅游者對詳盡信息的需求。
為實現上述目的,本發明提供如下技術方案:一種旅行社專用旅游信息展示裝置,包括展示板、防護罩和腳架,所述防護罩和腳架均與展示板固定連接,所述展示板兩側均固定設有連接架,所述連接架靠近展示板一側均勻可拆卸活動設有多個拓展展示件,所述展示板兩側均勻設有多個指向件,所述指向件的數量與拓展展示件的數量相等且一一對應;
所述展示板包括主體板,所述主體板中部開設有安裝槽,所述安裝槽內部固定設有透光板;
所述連接架包括主框架,所述主框架與主體板固定連接,所述主框架遠離主體板一端均勻固定設有多個定位架,所述定位架中部開設有掛放槽;
所述拓展展示件包括收聚盒,所述收聚盒內部設有主體桿,所述主體桿兩端均與收聚盒內壁之間轉動連接,所述主體桿兩端與收聚盒內壁之間設有轉向扭簧,所述轉向扭簧兩端分別主體桿和收聚盒內壁固定連接,所述主體桿一側設有手持桿,所述手持桿與主體桿之間設有拓展卷,所述拓展卷兩端分別與手持桿和主體桿固定連接;
所述指向件包括連接桿,所述連接桿一端設有定位柱,所述連接桿另一端設有固定吸盤,所述固定吸盤與連接桿之間設有指示標,所述定位柱中部開設有轉向槽,所述連接桿與定位柱連接處設有第一通孔,所述連接桿另一端固定設有固定柱,所述固定柱遠離連接桿一端與固定吸盤固定連接,所述指示標與固定柱連接處開設有第二通孔。
在一個優選地實施方式中,所述安裝槽縱向貫穿主體板,所述安裝槽長寬均與透光板相等,且透光板厚度小于安裝槽深度,所述透光板由鋼化玻璃/透明亞克力板材料制成。
在一個優選地實施方式中,相連兩個所述定位架設置為一組,定位架組數與拓展展示件數量相等且一一對應,所述掛放槽寬度大于手持桿外徑。
在一個優選地實施方式中,所述手持桿長度大于收聚盒高度,且手持桿長度大于每組定位架的間距。
在一個優選地實施方式中,所述定位柱一端與主體板固定連接,所述第一通孔內徑大于轉向槽外徑且小于定位柱外徑,所述連接桿通過第一通孔與定位柱轉動連接。
在一個優選地實施方式中,所述固定吸盤由橡膠材料制成,所述固定柱兩端分別與固定吸盤和連接桿固定連接。
在一個優選地實施方式中,所述指示標設置為箭頭狀,所述第二通孔內徑與固定柱外徑相等,所述指示標通過第二通孔與固定柱轉動連接。
在一個優選地實施方式中,所述拓展卷上復印有旅游點詳情及該地的風土人情的詳盡介紹信息。
本發明的技術效果和優點:
本發明通過拓展展示件與指向件的配合使用,旅行社工作人員將近期的旅游路線宣傳海報張貼于透光板位置進行展示,通過第一通孔與定位柱之間的角度轉動帶動連接桿的角度轉動,隨后撥動指示標,使該連接桿角度下的指示標的指向保持水平,由指示標指向宣傳海報上文字部分的待展開介紹的地點名稱位置,連同連接桿形成一個指示引線的效果,旅游者在觀看張貼的宣傳海報時,拉動對應位置處的手持桿,經主體桿與收聚盒的轉動帶動拓展卷的全面展開,需要信息拓展的旅游者僅需根據拓展卷上內容即可對旅游地點進行詳盡了解可以,保證展示信息的簡潔有效性又可保證部分旅游者對詳盡信息的需求。
附圖說明
圖1為本發明的整體結構示意圖。
圖2為本發明的側視圖。
圖3為本發明的展示板爆炸結構示意圖。
圖4為本發明的圖1中A部結構放大圖。
圖5為本發明的拓展展示件爆炸結構示意圖。
圖6為本發明的指向件結構示意圖。
圖7為本發明的指向件爆炸結構示意圖。
附圖標記為:1展示板、11主體板、12安裝槽、13透光板、2防護罩、3腳架、4連接架、41主框架、42定位架、43掛放槽、5拓展展示件、51收聚盒、52主體桿、53轉向扭簧、54手持桿、55拓展卷、6指向件、61連接桿、62定位柱、63固定吸盤、64指示標、65轉向槽、66第一通孔、67固定柱、68第二通孔。
具體實施方式
下面將結合本發明實施例中的附圖,對本發明實施例中的技術方案進行清楚、完整地描述,顯然,所描述的實施例僅僅是本發明一部分實施例,而不是全部的實施例。基于本發明中的實施例,本領域普通技術人員在沒有做出創造性勞動前提下所獲得的所有其他實施例,都屬于本發明保護的范圍。
本發明提供了一種旅行社專用旅游信息展示裝置,包括展示板1、防護罩2和腳架3,所述防護罩2和腳架3均與展示板1固定連接,所述展示板1兩側均固定設有連接架4,所述連接架4靠近展示板1一側均勻可拆卸活動設有多個拓展展示件5,所述展示板1兩側均勻設有多個指向件6,所述指向件6的數量與拓展展示件5的數量相等且一一對應;
所述展示板1包括主體板11,所述主體板11中部開設有安裝槽12,所述安裝槽12內部固定設有透光板13;
所述連接架4包括主框架41,所述主框架41與主體板11固定連接,所述主框架41遠離主體板11一端均勻固定設有多個定位架42,所述定位架42中部開設有掛放槽43;
所述拓展展示件5包括收聚盒51,所述收聚盒51內部設有主體桿52,所述主體桿52兩端均與收聚盒51內壁之間轉動連接,所述主體桿52兩端與收聚盒51內壁之間設有轉向扭簧53,所述轉向扭簧53兩端分別主體桿52和收聚盒51內壁固定連接,所述主體桿52一側設有手持桿54,所述手持桿54與主體桿52之間設有拓展卷55,所述拓展卷55兩端分別與手持桿54和主體桿52固定連接;
所述指向件6包括連接桿61,所述連接桿61一端設有定位柱62,所述連接桿61另一端設有固定吸盤63,所述固定吸盤63與連接桿61之間設有指示標64,所述定位柱62中部開設有轉向槽65,所述連接桿61與定位柱62連接處設有第一通孔66,所述連接桿61另一端固定設有固定柱67,所述固定柱67遠離連接桿61一端與固定吸盤63固定連接,所述指示標64與固定柱67連接處開設有第二通孔68。
相連兩個所述定位架42設置為一組,定位架42組數與拓展展示件5數量相等且一一對應,所述掛放槽43寬度大于手持桿54外徑,所述手持桿54長度大于收聚盒51高度,且手持桿54長度大于每組定位架42的間距,所述安裝槽12縱向貫穿主體板11,所述安裝槽12長寬均與透光板13相等,且透光板13厚度小于安裝槽12深度,所述透光板13由鋼化玻璃/透明亞克力板材料制成,所述定位柱62一端與主體板11固定連接,所述第一通孔66內徑大于轉向槽65外徑且小于定位柱62外徑,所述連接桿61通過第一通孔66與定位柱62轉動連接,所述固定吸盤63由橡膠材料制成,所述固定柱67兩端分別與固定吸盤63和連接桿61固定連接,所述指示標64設置為箭頭狀,所述第二通孔68內徑與固定柱67外徑相等,所述指示標64通過第二通孔68與固定柱67轉動連接,所述拓展卷55上復印有旅游點詳情及該地的風土人情的詳盡介紹信息。
如圖1-7所示的,實施方式具體為:旅行社工作人員將近期的旅游路線宣傳海報張貼于透光板13位置進行展示,期間張貼海報對應處的重點旅游景點位置,可由工作人員將最接近位置處的指向件6的固定吸盤63與主體板11分離,隨后轉動連接桿61,通過第一通孔66與定位柱62之間的角度轉動帶動連接桿61的角度轉動,隨后撥動指示標64,經由第二通孔68與固定柱67間的角度轉動,使該連接桿61角度下的指示標64的指向保持水平,隨后經固定吸盤63與對應位置處的主體板11吸附固定,由指示標64指向宣傳海報上文字部分的待展開介紹的地點名稱位置,連同連接桿61形成一個指示引線的效果,再在該位置處的主框架41上安裝拓展展示件5即可,其他指向件6的指示標64保持縱向垂直設置,避免引起指向錯亂問題,旅游者在觀看張貼的宣傳海報時,僅需經指向件6的指示,拉動對應位置處的手持桿54,經主體桿52與收聚盒51的轉動帶動拓展卷55的全面展開,期間帶動轉向扭簧53舒展,并由掛放槽43作為手持桿54的掛放處,需要信息拓展的旅游者僅需根據拓展卷55上內容即可對旅游地點進行詳盡了解可以,而僅需簡要了解旅游行程的旅客,直接觀看宣傳海報即可,且在拓展卷55上內容觀察后,僅需將手持桿54與掛放槽43分離,在轉向扭簧53回彈力作用下,帶動主體桿52轉動將拓展卷55收回至收聚盒51內腔,每個旅行社僅需根據開展的旅游線定做對應的地點制作拓展展示件5即可,在根據該時間段推出的旅游路線包含的地點將對應的拓展展示件5進行安裝即可。
最后應說明的幾點是:首先,在本申請的描述中,需要說明的是,除非另有規定和限定,術語“安裝”、“相連”、“連接”應做廣義理解,可以是機械連接或電連接,也可以是兩個元件內部的連通,可以是直接相連,“上”、“下”、“左”、“右”等僅用于表示相對位置關系,當被描述對象的絕對位置改變,則相對位置關系可能發生改變;
其次:本發明公開實施例附圖中,只涉及到與本公開實施例涉及到的結構,其他結構可參考通常設計,在不沖突情況下,本發明同一實施例及不同實施例可以相互組合;
最后:以上所述僅為本發明的優選實施例而已,并不用于限制本發明,凡在本發明的精神和原則之內,所作的任何修改、等同替換、改進等,均應包含在本發明的保護范圍之內。

圖1

圖2

圖3

圖4

圖5

圖6
圖7
劉寶平工作室 · Mr.Liu Studio
Mr.Liu Studio創始人
http://m.chun-gong.com.cn/mobile/article/list/cateid-290.html
地址
校內:山東聊城職業技術學院旅游管理系
校外:山東聊城東昌府區興華東路7號
電話
點擊電話 直接撥打